NEW!! 新築一戸建て

松江市東出雲町揖屋

#バリアフリー #オール電化 #新着・値下げ物件 #接道6m以上 #駐車場2台可
  • 1/9
  • 2/9
  • 3/9
  • 4/9
  • 5/9
  • 6/9
  • 7/9
  • 8/9
  • 9/9
物件
価格

3,150万円

47.58坪 /3SLDK
map 松江市東出雲町揖屋 train
市営「竹矢」歩4分

設備:公営水道、本下水、オール電化、建築確認番号:第07−860号、駐車場:カースペース

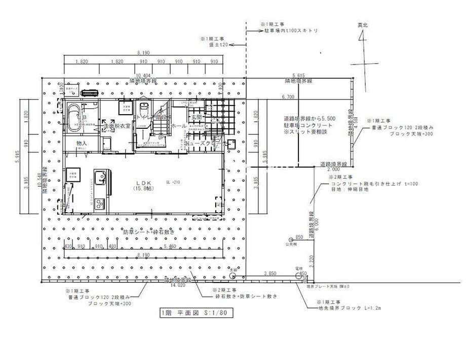
  • 3150万円、3LDK 2S、土地面積157.29m2、建物面積95.22m2 1/9
  • 2/9
  • 3150万円、3LDK 2S、土地面積157.29m2、建物面積95.22m2 外構の図面です。 3/9
  • 光触媒が汚れをセルフクリーニングしてくれるため、塗り替えや張り替えのメンテナンスが40年後でもOK な「光セラ18」を採用しています。 40年の品質保証ではありません。 4/9
  • 鍵の出し入れが不要なスマートキー。カードキー、タグキーのほか、スマホでも施解錠できちゃう 専用アプリを使えば履歴の確認や通知も可能。便利と防犯を兼ね備えたスマート玄関システムです。 5/9
  • 「建物品質保証20年」構造耐力上主要な部分および雨水の侵入を防止する部分につき20年の品質保証が付いています。 6/9
  • 高い耐久性と耐風性がうれしい、太陽光パネルも設置可能な「平板瓦」を採用。山陰の景色にマッチする瓦ならではの美しさと、メンテナンスが楽なのもうれしいポイント。 7/9
  • 「地盤品質保証20年」万が一建物が不均等に傾き沈む現象(不同沈下)が発生した場合には、不同沈下に起因する建物の損害に対して、20年の品質保証が付いています。 8/9
  • 「設備保証10年」キッチン、バス、給湯器、洗面台、トイレの自然故障に対して10年の設備保証が付いています。 経年劣化や消耗品は対象外です。 9/9

月々のお支払い例

借入金額
万円
支払期間
金利
%
頭金
万円
ボーナス
万円
月々の
支払い金額
※山陰合同銀行/借入金3,150万円、返済期間40年、金利0.800%変動金利)の場合
※審査により金利は変わる可能性があります。
営業時間/10:00〜18:00
定休日/水曜日

周辺地図

物件概要

物件名
松江市東出雲町揖屋
所在地
松江市東出雲町揖屋 松江市の不動産一覧 >
交通
市営「竹矢」歩4分
学校区
物件種別
新築一戸建て
価格
3,150万円 (税込)
築年月
2026年9月完成予定
構造
木造
階数
地上2階 建
土地面積
157.29㎡ (47.58坪)
建物面積
95.22㎡ (28.80坪)
間取り
3SLDK
接道
セットバック
私道負担
土地権利
所有権
駐車場
3台駐車可
諸費用
現況
建ぺい率
60%
容積率
200%
地目
水道・ガス
都市計画
引渡時期
2026年09月下旬
総戸数
1戸
用途地域
第1種住居地域
国土法届出
不要
法令上の制限
取引態様
仲介
建築確認番号
建築条件
情報更新日
2026年04月04日
次回更新予定日
2026年04月18日
設備
コンロ種別IH システムキッチン 給湯 シャワー付洗面化粧台 床下収納 W.INクローゼット フローリング TVドアホン バリアフリー 温水洗浄便座 オール電化 カウンターキッチン 浴室乾燥機 食器洗い乾燥機 全居室収納 シューズインクローゼット有 オートバス 設計住宅性能評価書有 浄水器・活水器 全室フローリング 地盤調査済
※ 図面と現況が異なる場合は、現況を優先とします。
※ 掲載物件は成約済み・売却中止となる場合があります。
※ 成約の際は仲介手数料とこれにかかる消費税が必要です。
※ 写真に写っている、またはパース(絵)や間取り図に描かれている家具や車などは、特にコメントがない場合、物件価格に含まれません。

松江エリア 担当事務所

map 島根県松江市津田町305 0120-759-575 営業時間:10:00〜18:00(水曜定休) 来店予約